Herden
+
Herden
Architekten AKNW Bausachverständige
Neubauten
Bauen im Bestand
Projektliste
Kaufberatung
Was wir bieten
Über uns
Kontakt
Impressum
Datenschutz
Voriges Bild
Nächstes Bild
1
2
3
4
5
6
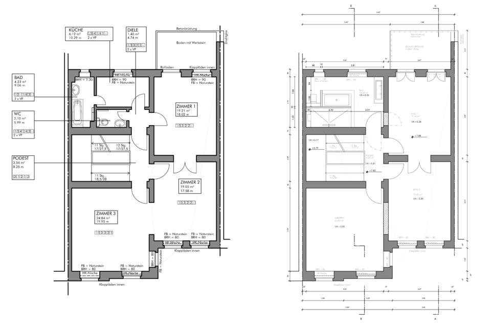
Gründerzeithaus in Bonn-Poppelsdorf:
Grundriss 2. Obergeschoss Bestand/Umbauplanung